19 Rafferty Street, White Rock

$590 pw

3 1 1 618 m2

What you've been searching for!

Conveniently located close to schools, shopping centre and only 10 mins to the CBD, this property is just what you've been searching for!

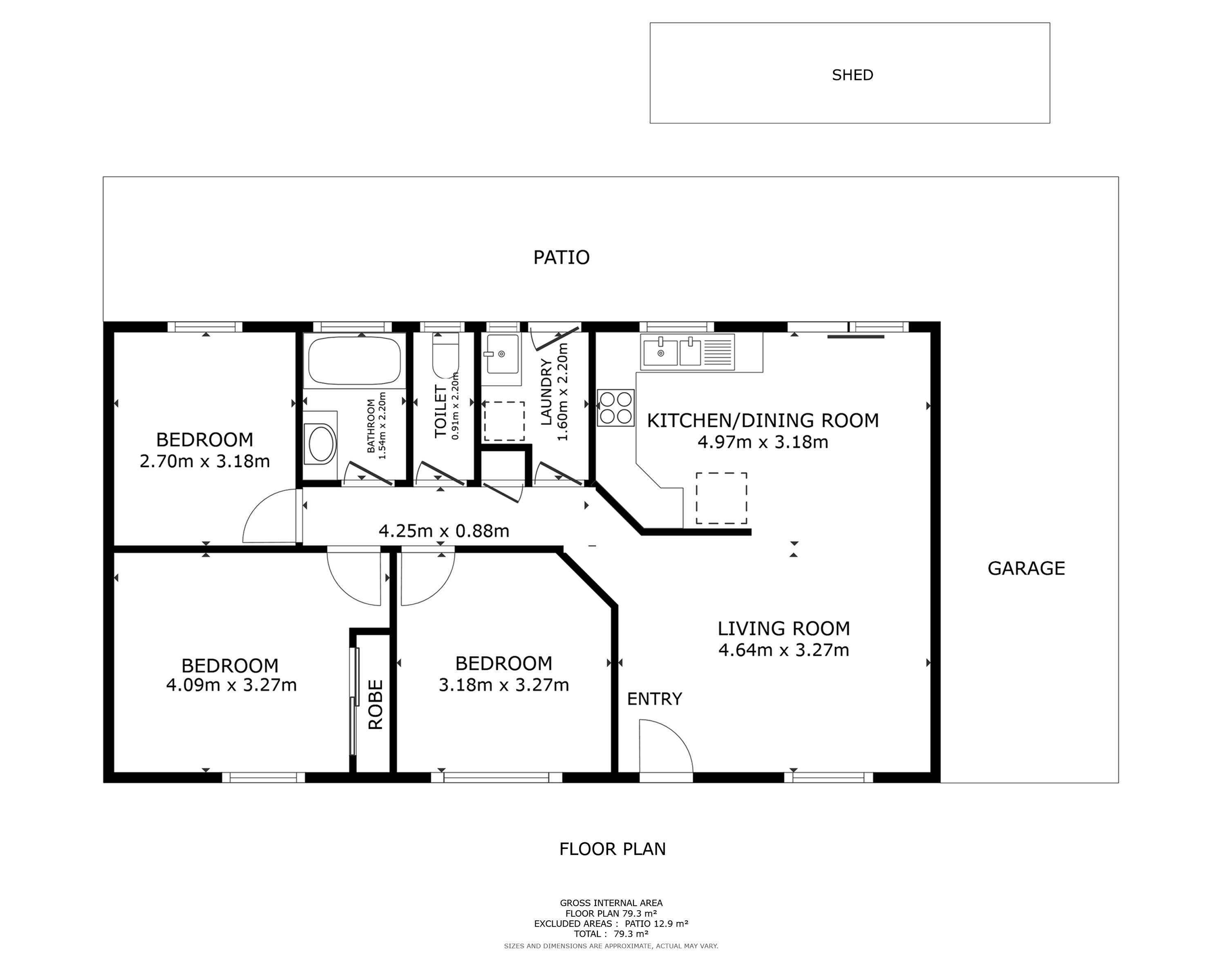
Set on a flat 618m2 block, this solid block home features;

- Open plan living opening out to a large full length undercover patio
- Gorgeous refurbished kitchen with ample bench and cupboard space
- Three bedrooms, main with built in robe
- Air conditioned living and bedrooms 1 and 2
- Main bathroom with bath/shower and separate toilet
- Internal laundry
- Large fenced rear yard
- 6m x 3m garden shed
- Drive through access to rear yard
- New curtains, lights and fans

** IMPORTANT INFORMATION **

LEASE TERM: 12 month lease
WATER: Tenant to pay full water usage
INSPECTIONS: please click "book an inspection time" to activate our 24/7 automated booking system

N.B. The furnishings contained in these images are for display purposes only – the property will be unfurnished.

Features

Block Construction Flat Block No Pool Outdoor Entertaining Rear Access

Details

Available Tuesday 3 February 2026
Address 19 Rafferty Street, White Rock
Price $590 pw
Property Type Rental
Property ID 1747
Category House
Land Area 618 m2

Share

Carol Reid photo

Carol Reid

07 4031 3138