Leased

Mount Sheridan

$630 pw

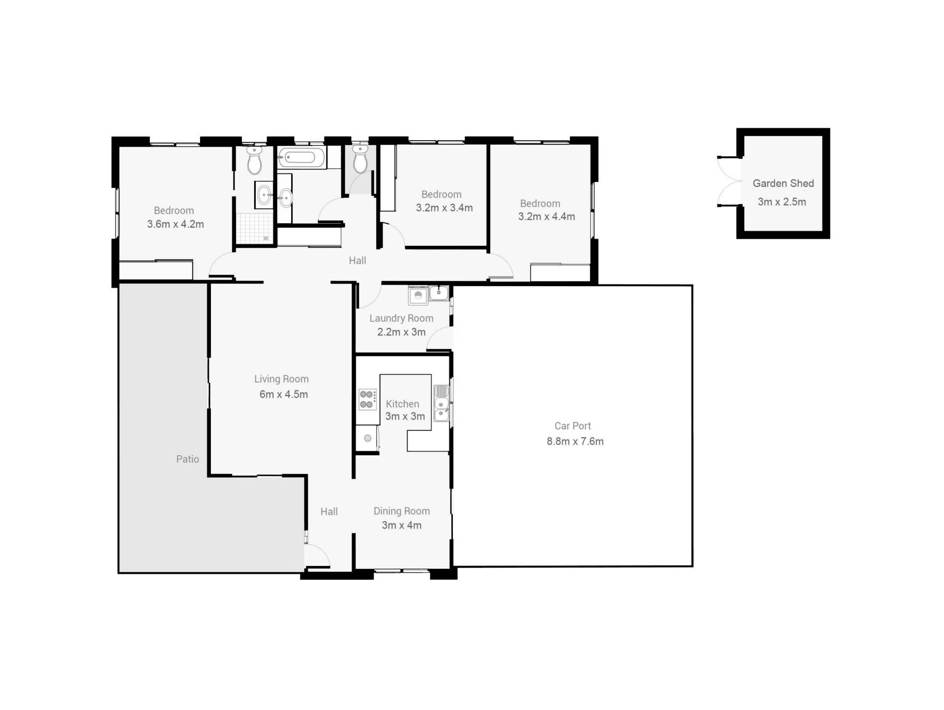
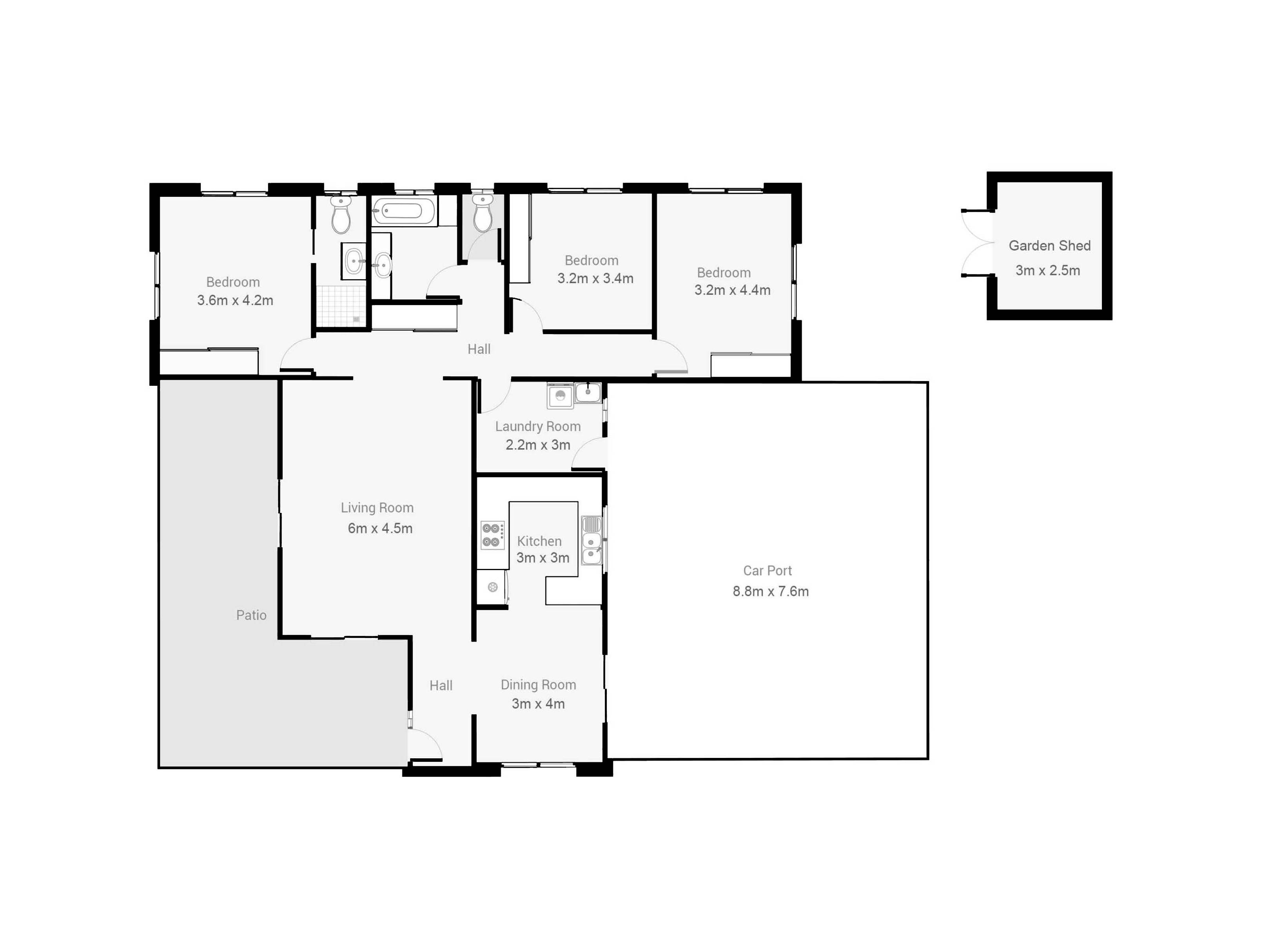
3 2 2 721 m2

Spacious 3-Bedroom Home on Corner Block

Positioned on a generous 721m² corner block in a quiet, well-connected neighbourhood, this freshly painted 3-bedroom home offers the ideal combination of space, comfort, and convenience-right across the road from a beautiful community park.

Step inside to discover a light-filled layout designed for easy living. The spacious living area flows effortlessly onto a tiled outdoor patio, perfect for entertaining or relaxing. The large kitchen features ample storage and bench space, with a dedicated dining area nearby for family meals or dinner with friends.

Features:
• Generous 721m² corner block with fully fenced yard
• Three bedrooms, all with built-in robes
• Master suite with private ensuite
• Large main bathroom + separate toilet for added convenience
• Air-conditioned
• Spacious kitchen with plentiful cupboards & bench space
• Light-filled living area + separate dining zone
• Internal laundry with outdoor access
• Expansive tiled patio perfect for outdoor entertaining
• Oversized undercover parking with direct internal access
• Garden shed for extra storage
• Freshly repainted internals
• Community park right across the street – perfect for families or pet owners

Enjoy the convenience of being close to local schools, shopping centres, public transport, and recreation spaces. The quiet street and direct park access make this the ideal home for families, couples, or anyone seeking space and a peaceful setting.

** IMPORTANT INFORMATION **

LEASE TERM: 12 month lease
WATER: Tenants to pay 100% usage
INSPECTIONS: please click "book an inspection time" to activate our 24/7 automated booking system

Details

Available Leased
Suburb Mount Sheridan
Price $630 pw
Property Type Rental
Property ID 1385
Category House
Land Area 721 m2

Share